ステンレスガラス用調整ヒンジ(ガラス板取付タイプ) [OT-B460-SUS]
ステンレスガラス用調整ヒンジ(ガラス板取付タイプ)
                                                [OT-B460-SUS]
                                            
                                         
                                            販売価格: 34,100円(税込)
商品詳細
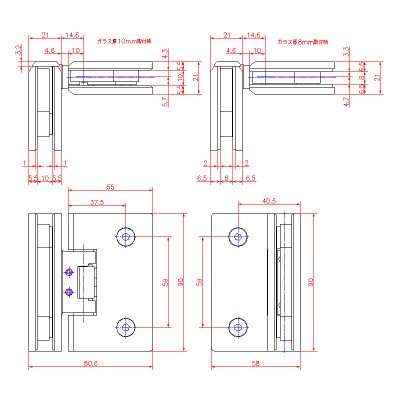
戸先5度、調整機能付き【90°隣接ガラス板取付】ヒンジ。
浴室・シャワーブースドアなど、水廻りでご使用いただけます。
浴室・シャワーブースドアなど、水廻りでご使用いただけます。

製品特長
・扉を吊ったまま戸先を閉まり方向へ各5°角度調整ができます。
・扉が25°時に自動で閉まります。
材質
ステンレス鋼(SUS-304)
仕上げ
鏡面仕上(MST)
ヘアーライン(HLST)※受注生産
許容荷重
40kg※蝶番2個使用時
対応ガラス厚
8~10 mm
対応ガラス厚
~800 mm
※使用頻度により異なります
製品自重
1014g
注意事項
◇片開き扉推奨製品です。
◇扉を全開した時に、90°以上開けないように別途戸当たり等をご使用下さい。
◇空調や取り付け位置等の条件によっては扉の閉まる位置にズレが生じる可能性があります。
◇戸先調整ビス(六角ビス)が緩むと音鳴りが発生します。ビスは最後まで必ず締め込んで下さい。
補足説明
・付属部品:
パッキン(1mm厚)×4枚、パッキン(2mm厚)×4枚、
側面パッキン×2枚、六角レンチ(大小)×各1本
・取り付けについては、商品に付いている取付説明書をご参照下さい。
【価格(1個当たり)】
鏡面仕上(MST)
31,000円(税別、送料無料)




【寸法図】








 
                                                                     
                                                                     
                                                                     
                                                                     
                                                                 
                                                                 
                                                                 
                                                                


 
                                                             
                                                                         
                                                                         
                                                                    
Facebookコメント